Schleife:
Ehemaliges Wasserwerk zum Umgestalten in der Nähe von Schleife
Objekt-Nr.: 2671-K

Südansicht

Südansicht

Nordansicht

NO-Ansicht

Nordansicht

Ostansicht

Kellerzugang

Nordansicht

Flur - Blick von der Hauseingangstür

Flur

Waschbereiche mit Duschen

Umkleideräume

Umkleideräume

Blick auf eine Dusche

WC Männer

Blick in den Keller

Blick in den Keller

Blick in den Keller

Keller: Wasseruhr

Keller: Gasanschluss

Keller: Elt. Verteilung

Lageplan

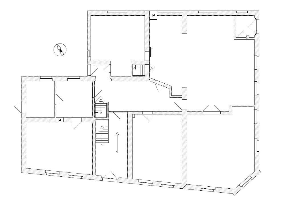
Grundriss EG























Preis:
40.000 €
Gesamtfläche ca.:
110 m²
Lager-/ Produktionsfläche ca.:
20 m²
Das zu verkaufende Gebäude wurde in der Vergangenheit als Sanitärgebäude genutzt, zuvor wurde es als Wasserwerk betrieben.
Im Inneren befinden sich Umkleideräume, Waschbecken, Duschen und Toiletten.
Das gesamte Gebäude besitzt einen Vollkeller, in welchem sich auch die zentrale Heizungsanlage und der Wasseranschluss befinden.
Über eine Außentreppe ist dieser Keller erreichbar.
Weitere Ausstattungsmerkmale
Erschließung: Wasser, Elektro (Drehstrom), Telefon, Erdgas
Die Abwasserentsorgung ist über eine neue abflusslose Sammelgrube oder eine biologische Kleinkläranlage herzustellen.…
Bauweise: Massivbauweise
Heizung: zentrale Gasheizung
Fenster: PVC-Fenster
Dach: Flachdach
Neuerungen
1997: Heizungsanlage
1997: Umbau in ein Sanitärgebäude mit Umkleide-, Dusch- und WC-Räumen
Besonderheiten
Nutzung des Gebäudes: Wie bisher, ggf. als Ausstellungsfläche.
Eine Nutzungsänderung findet Klärung über eine Bauvoranfrage bei der zuständigen Bauaufsichtsbehörde.
Hinweis: Das Grundstück befindet sich im Außenbereich (§ 35 BauGB).
Ein entsprechendes Nutzungskonzept inkl. Zeitplanung ist der Gemeinde Schleife vorzulegen.
Das zu erwerbende Grundstück ist momentan noch nicht vermessen. Die tatsächliche Flächengröße liegt somit noch nicht fest.
Noch ausstehende Arbeiten
Der Schornstein (Eingangsbereich) ist versottet und sollte saniert werden.
Um dem Objekt eine neue Nutzung zuführen zu können, wäre ein Umbau erforderlich.
Kaufpreisfindungshilfe
Bodenwert 2022 beträgt 27,00 EUR/qm x 600 qm = 16.200,00 EUR
Gebäudewert
45.000.00 EUR - 60.000,00 EUR
Grundstück ca.: 600 m²
Hauptfläche teilbar ab: 110 m²
Provision: Käuferprovision 3,57 % inkl. MwSt vom Kaufpreis -
Letzte Modernisierung/ Sanierung: 1997
Qualität der Ausstattung: normal
Baujahr: 1960
Etagenanzahl: 1
Umgebung: ruhige Gegend, Wald
Bodenbelag: Fliesen
Zustand: renovierungsbedürftig
Fahrzeit zur nächsten BAB: 40 Minute(n)
Heizung: Zentralheizung
Befeuerungsart: Gas
Energieausweistyp: Bedarfsausweis
Baujahr laut Energieausweis: 1960
Bei Abschluss eines Kaufvertrages wird eine Vermittlungs-/ Nachweisprovision in Höhe von 3,57 % inklusive 19 % Mehrwertsteuer auf den Kaufpreis vom Käufer fällig. Mind. jedoch 3.000,00 EUR inkl. MWSt. Der Immobilienmakler hat einen provisionspflichtigen Maklervertrag mit dem Verkäufer in der gleichen Höhe abgeschlossen.
Die von uns getätigten Informationen beruhen auf Angaben des Verkäufers bzw. der Verkäuferin. Für die Richtigkeit und Vollständigkeit der Angaben kann keine Gewähr bzw. Haftung übernommen werden. Ein Zwischenverkauf und Irrtümer sind vorbehalten.
Das könnte Ihnen auch gefallen

Immobilienservice-Final Kathrin Rössel
Frau Kathrin Rössel
Bautzener Straße 58
02943 Weißwasser /O.L.
Telefon: +49 3576 216302
Mobil: +49 0151 11664596































































































































