Weißwasser/Oberlausitz:
Exklusives Anwesen: Wohnen und Arbeiten unter einem Dach
Objekt-Nr.: 2544-K

Giebel Nord

Giebel Süd

Westansicht

Westansicht

NO-Ansicht

Terrasse oder Parkplatz (Süd)

Einfahrt (SO)

Balkon von der Küche aus (N)

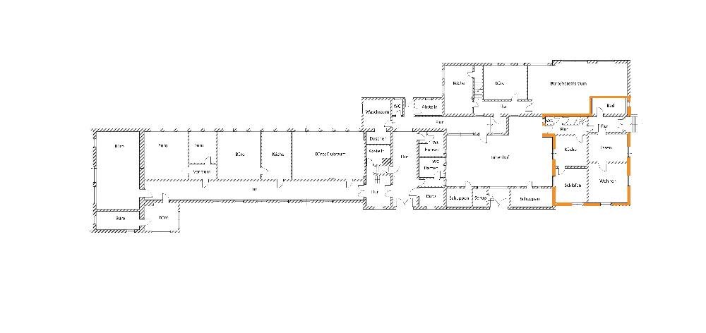
EG: Bürobereiche

EG: Bürobereiche

EG: Einzelbüro

EG Wohnbereich: Diele

Wohnbereich: Geschosstreppe

OG Wohnbereich: Diele

OG Wohnbereich: Diele

OG Wohnbereich: Wohnküche mit Balkon

OG Wohnbereich: Hauptbad

OG Wohnbereich: Hauptbad BW

OG Wohnbereich: Blick auf den Glasgiebel

OG Wohnbereich: Blick auf die Empore

OG Wohnbereich: Blick auf die Geschosstreppe

OG Wohnbereich: Kamin

OG Wohnbereich: Kamin

OG Wohnbereich: Geschosstreppe

OG Wohnbereich: Empore

OG Wohnbereich: Empore

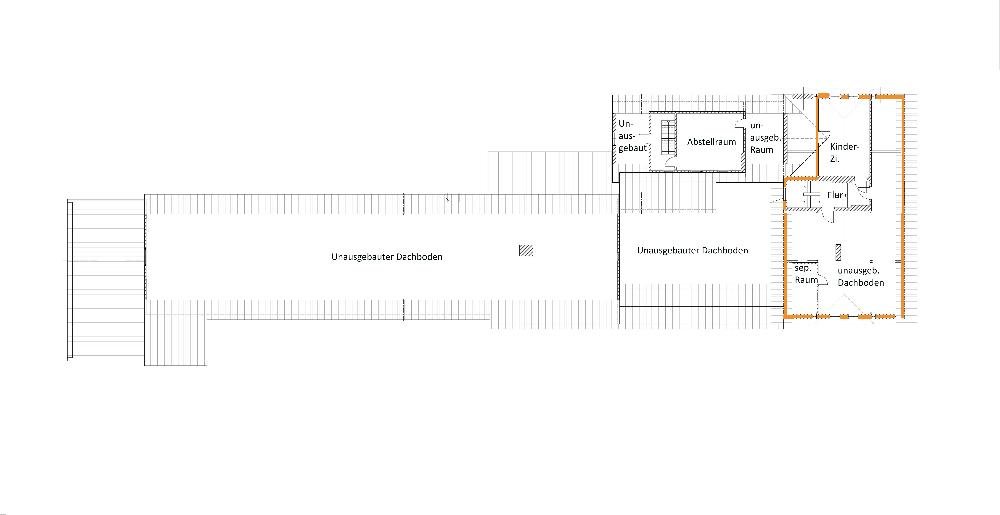
OG Wohnbereich: Büro im Spitzboden

Spitzboden mit WC

Geschosstreppe in den Keller

KG: Technikraum

KG: Gasheizung































Preis:
299.000 €
Wohnfläche ca.:
300 m²
Grundstück ca.:
900 m²
Zimmeranzahl:
7
Das Wohnhaus mit rund 300 m² Wohnfläche eignet sich perfekt für Familien, die sich viel Freiraum wünschen. Die beiden Wohneinheiten im Haus sind getrennt voneinander erreichbar und nutzbar. Im Erdgeschoss müsste lediglich eine Küche nachgerüstet werden, um eine vollständige Wohneinheit zu schaffen. Alternativ könnten Sie hier Hobby-, Fitness- oder Arbeitsräume gestalten
Direkt vor dem Haus in südwestlicher Richtung befindet sich eine gepflasterte Parkfläche, die flexibel genutzt werden kann – sei es als großzügige Terrasse oder als Parkplatz. Hinter dem Haus schließt sich der Garten an.…
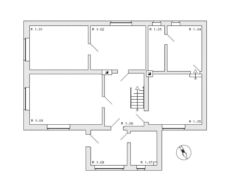
Die Wohneinheit im Obergeschoss hat einen separaten Zugang von der nördlichen Seite des Hauses. Im Erdgeschoss-Flur dieser Einheit befindet sich ein praktisches WC in unmittelbarer Nähe zur Eingangstür.
Eine Treppe führt in den Flur des Obergeschosses, wo sich die Wohnküche mit Balkonzugang befindet, von dem aus Sie einen herrlichen Blick in den Rhododendron-Garten genießen können. Die Küche ist mit einer Speisekammer und einer hochwertigen Simatic-Küche ausgestattet. Ein begehbarer Kleiderschrank im Flur bietet zusätzlichen Stauraum.
Das Herzstück des Hauses ist die beeindruckende Wohnstube im Obergeschoss mit ca. 90 m², Eichenholzparkett und Kronleuchter. Dieser lichtdurchflutete Raum beeindruckt mit einer Glasgiebelwand mit durchgehendem Balkon und einem offenen Kamin. Eine stilvolle Holztreppe führt auf eine Empore, die derzeit als Büro genutzt wird. Hinter der Empore befindet sich ein weiterer Raum, der als Schlafzimmer dient. Vom Schlafraum aus gelangen Sie in ein WC mit Fenster.
Das großzügige Hauptbad, das von dem großräumigen Wohnraum aus erreichbar ist, verfügt über eine große Dusche, eine Eckbadewanne, ein Doppelwaschbecken und eine Ankleide.
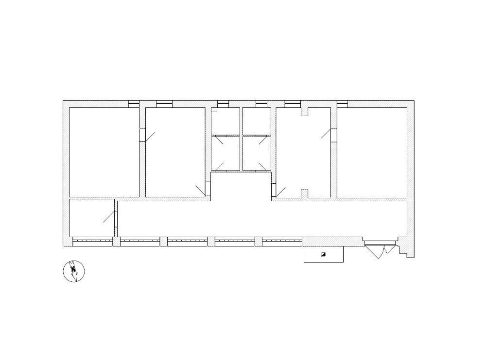
Im Erdgeschoss befinden sich vier Zimmer, ein WC mit Dusche und eine kleine Küche. Jeder Raum hat mindestens ein Fenster.
Der große Vollkeller mit diversen Räumen und WC mit Dusche ist von beiden Wohneinheiten aus leicht zugänglich. Eine Doppelgarage mit Zugang zur Erdgeschosswohnung als auch eine Einzelgarage mit Zugang zum Keller fügen sich jeweils seitlich an das Haus an.
Das Grundstück des Hauses kann um ca. 3000 m² Wald und um ca. 3000 m² Gartenland mit Gästehaus, Blumenhaus, Hochbeeten, Gewächshaus und Obstgehölzen erweitert werden.
Weitere Ausstattungsmerkmale
• Erschließung: Wasser, Biokläranlage, Flüssiggas, Elektro, SAT-TV, Telekom
• Bauweise: Massivbauweise
• Fenster: Holz-Isolierglasfenster mit teilweise Außenjalousien (straßenseitig OG Schallschutzfenster)
• Dach: Hauptgebäude mit Satteldach, gedeckt mit Eternitplatten (fasergebundene Zementplatten)
• Heizung: Zentrale Gasheizung mit Warmwasseraufbereitung über Flüssiggas
Neuerungen
• 1995: Teilweise Elektrik, Innenausbau
• 2015: Biokläranlage inkl. Verrohrung
• 2018: Zentrale Flüssiggasheizung, 4 Dachflächenfenster
Noch ausstehende Arbeiten
• Schönheitsreparaturen
• Diverse Kleinreparaturen, wie Streicharbeiten
• Grundstücksvermessung
• Einfriedung
Haustyp: Zweifamilienhaus
Etagenanzahl: 2
Provision: 2,38 % vom Kaufpreis inkl. MWSt.
Küche: Einbauküche
Bad: Dusche, Wanne, Fenster
Anzahl Badezimmer: 3
Terrasse: 2
Gäste-WC: ja
Garten: ja
Kamin: ja
Keller: voll unterkellert
Umgebung: Wald
Anzahl der Parkflächen: 4 x Außenstellplatz; 3 x Garage
Letzte Modernisierung/ Sanierung: 2018
Qualität der Ausstattung: normal
Baujahr: 1994
Bodenbelag: Fliesen, Parkett
Zustand: saniert
Energieverb. Warmwasser enthalten: ja
Heizung: Zentralheizung
Befeuerungsart: Flüssiggas
Energieausweistyp: Verbrauchsausweis - gültig vom 10.03.2019 bis 10.03.2029
Energieeffizienz-Klasse: D
Baujahr laut Energieausweis: 1986
Bei Abschluss eines Kaufvertrages wird eine Vermittlungs-/ Nachweisprovision in Höhe von 2,38 % inklusive 19 % Mehrwertsteuer auf den Kaufpreis vom Käufer fällig. Der Immobilienmakler hat einen provisionspflichtigen Maklervertrag mit dem Verkäufer in der gleichen Höhe abgeschlossen.
Die von uns getätigten Informationen beruhen auf Angaben des Verkäufers bzw. der Verkäuferin. Für die Richtigkeit und Vollständigkeit der Angaben kann keine Gewähr bzw. Haftung übernommen werden. Ein Zwischenverkauf und Irrtümer sind vorbehalten.
Das könnte Ihnen auch gefallen

Immobilienservice-Final Kathrin Rössel
Frau Kathrin Rössel
Bautzener Straße 58
02943 Weißwasser /O.L.
Telefon: +49 3576 216302
Mobil: +49 0151 11664596





























































































